Centre Comercial MAREMAGNUM (Barcelona)
Reforma dels espais comuns comercials i de la planta 2: terrassa, marquesina, accessos, nou espai de mercat i locals comercials i de restauració.
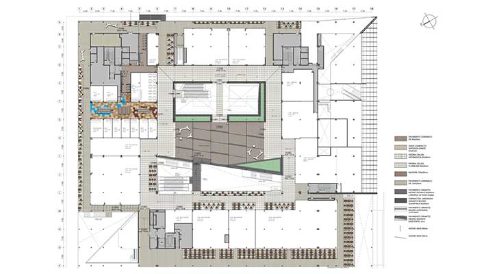
Situat al Port Vell de Barcelona, el Centre Comercial i d’Oci Maremàgnum, propietat de Corio Real Estate, actualitza els seus espais comuns i incorpora un nou espai dedicat a la restauració. L’objectiu d‘aquesta reforma es aconseguir la integració efectiva de la segona planta del centre amb la resta de l’edifici, del que històricament havia estat separada.
El redisseny d’aquesta zona potencia l’emplaçament excepcional de l’edifici mitjançant un pati-terrassa-mirador cobert per una marquesina perimetral lleugera i transparent sota la qual es situen els diferents restaurants.
Actualment, aquest centre comercial rep més de 13 milions de visitants a l’any i és l’únic a Barcelona amb permís d’obertura 365 dies a l’any.












