ESCOLA MUNICIPAL DE VELA · Port Olímpic · (Barcelona)
Nou equipament públic
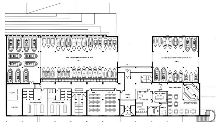
Les principals dependències de l'Escola Municipal de Vela es situen sota el passeig elevat del Nord-est, per tal de no ocupar ni entorpir la globalitat del gran espai unitari dels molls. El magatzem es concentra en un edifici que actua com terminal del passeig elevat del nord-est i com a frontissa d'unió amb el conjunt lineal del trencaones. És un edifici amb dos cossos, amb façanes de color blanc i brillant, rematades per un conjunt de 24 piràmides que resolen alhora els problemes d'iluminació, de ventilació permanent i de protecció contra l'aigua. El conjunt de piràmides delimita una plaça privada per als treballs preparatoris i des de la que es pot sortir directament al mar per una rampa.
La nostra missió va consistir en la col·laboració en la redacció del Projecte i la direcció de les Obres, amb seguiment de qualitat, terminis i cost, i fins al lliurament de l’edifici al client per a la seva ocupació.








