ESCOLA MUNICIPAL DE VELA · Port Olímpic · (Barcelona)
Nuevo equipamiento público
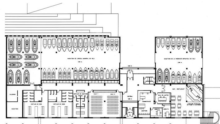
Las principales dependencias de la Escuela Municipal de Vela se situan bajo el paseo elevado del noroeste, para no ocupar ni entorpecer la globalidad del gran espacio unitario de los muelles. El almacén se concentra en un edificio que actúa como terminal del paseo elevado del noroeste y como nexo de unión con el conjunto lineal del rompeolas. Es un edificio de dos cuerpos, con fachadas de color blanco brillante, rematadas por un conjunto de 24 pirámides que resuelven a la vez los problemas de iluminación, de ventilación permanente y de protección contra el agua. El conjunto de pirámides delimita una plaza privada para los trabajos preparatorios desde la que se puede salir directamente al mar por una rampa.
Nuestra misión consistió en la colaboración en la redacción del Proyecto y la Dirección de Obras, con seguimiento de calidades, plazos y coste, y hasta la entrega del edificio al cliente para su ocupación.








