EDIFICI DE CAPITANIA · PORT OLÍMPIC · (Barcelona)
Nuevo edificio administrativo
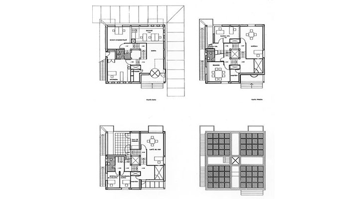
El edificio de Capitanía del Puerto (edificio de recepción del Puerto), se sitúa en el extremo del muelle de servicios, en frente de la bocana del puerto. Es un cubo de 12 x 12 x 12 m. con una superficie total construida de 320 m2. Su estructura de espacios en sucesión helicoidal hace que las plantas se comuniquen sucesivamente sólo con alteraciones de nivel de 75 cm, casi como si se tratase de una planta continua. Esta disposición espacial ha resultado ser ideal para el uso múltiple de dependencias Además, al edificio se le añadió una escalera exterior independiente. En el edificio se ubican la Comandancia Militar de Marina, la Administración del Puerto, los Servicios de la Direcció General de Ports i Costes de la Generalitat, el control de Aduanas i los servicios médicos del Puerto.
Nuestra misión consistió en la colaboración en la redacción del Proyecto y la Dirección de Obras, con seguimiento de calidades, plazos y coste, y hasta la entrega del edificio al cliente para su ocupación.






